Kitchen goals 🤸 | Design 2
Kitchen Goals - Kitchen Design - Interior Design 3D - Hometolife3D

Kitchen goals 🤸 | Design 2

Interieur Ontwerp & Advies

Basisinfo

Ontwerp

Aantal ruimtes:

2,5

Ruimtes:

Keuken, eetkamer (combi), woonkamer

Focus:

Interieur Ontwerp & Advies

Meubels:

Mebeulmaatwerk en Richmond Interiors

Wandafwerking:

Lab Paint, Arte Wallcovering

Plattegrond 2D

Kitchen Goals - Kitchen Design - Interior Design 3D - Hometolife3D

Plattegrond 3D

Kitchen Goals - Kitchen Design - Interior Design 3D - Hometolife3D

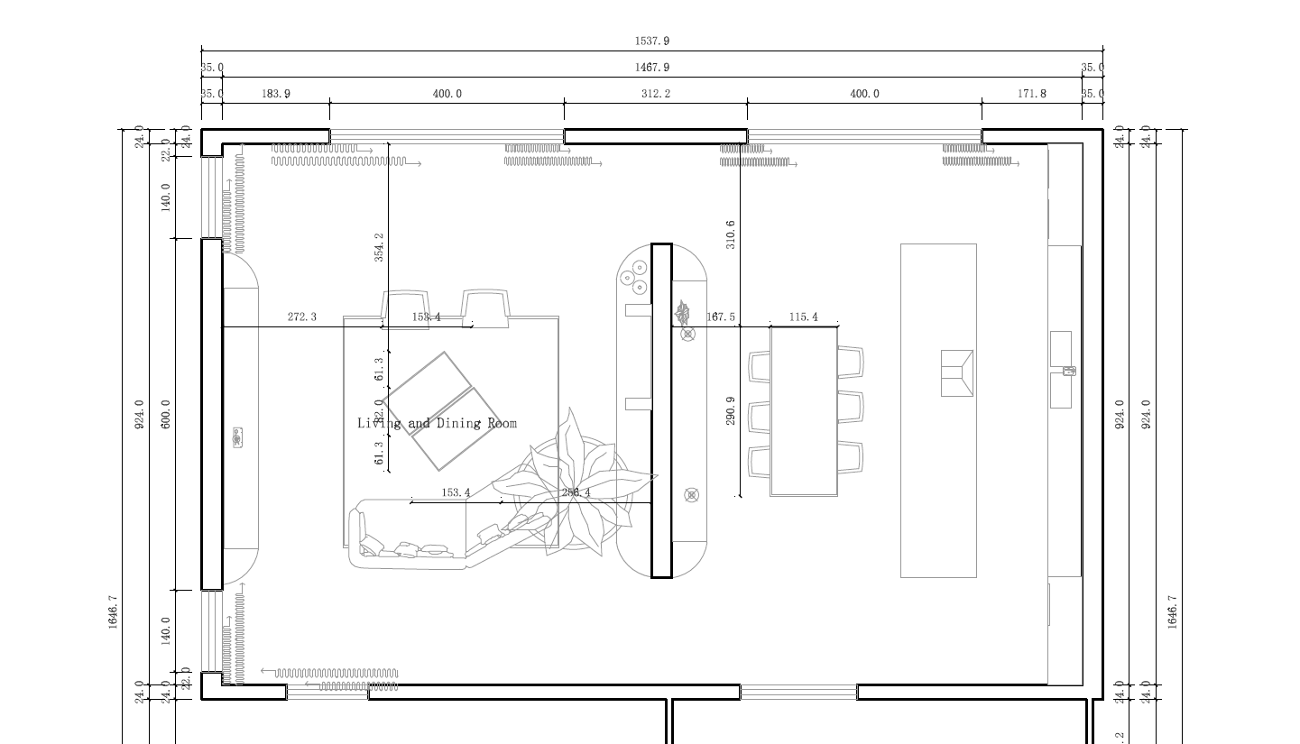
Technische Plattegrond

Conceptboard

Ontwerp in een overzicht

Interieurfotos

Interieurconcept in beeld

Shop the look

Shop de items uit het ontwerp

HAAL ALLES UIT JE INTERIEUR! ONTVANG EEN INTERIEURONTWERP INSPIRATIE IN LEVENSECHT 3D!

Bespaar jezelf een hoop tijd in de zoektocht naar het juiste interieur! Laat je verassen met een interieurontwerp inspriatie van Hometolife3D en ontvang een interieur ontwerp waarmee jezelf direkt aan de slag kunt!

Before and After

Zie het verschil

Kitchen Goals - Kitchen Design - Interior Design 3D - Hometolife3DKitchen Goals - Kitchen Design - Interior Design 3D - Hometolife3D
< - >
Kitchen Goals - Kitchen Design - Interior Design 3D - Hometolife3DKitchen Goals - Kitchen Design - Interior Design 3D - Hometolife3D
< - >

Voor welke ontwerp kies jij?

Voor ieder interieurontwerp ontwerp ik minimaal 2 vloerindelingen & interieurconcepten

Kitchen Goals - Kitchen Design - Interior Design 3D - Hometolife3DKitchen Goals - Kitchen Design - Interior Design 3D - Hometolife3D
< - >
Kitchen Goals - Kitchen Design - Interior Design 3D - Hometolife3DKitchen Goals - Kitchen Design - Interior Design 3D - Hometolife3D
< - >

Optimale ruimte beleving

Interieurvideo

LET OP! Het kan voorkomen dat afbeeldingen, afmetingen en kleuren, alsmede de namen binnen het ontwerp afwijken van de werkelijkheid. Alles wat op het scherm wordt waargenomen kan door vele factoren worden gewijzigd, waaronder de kalibratie, het omgevingslicht, de kijkhoek. De afgebeelde kleuren kunnen afwijken van de werkelijkheid, daarom wordt aangeraden om de producten aan de hand van stalen of een bezoek aan een van onze partner showrooms te beoordelen. Derhalve kunnen geen rechten ontleend worden aan de getoonde afbeeldingen met betrekking tot kleur. Lees meer binnen de disclaimer.

Top