Woning met sfeer door verlaagde woonkamer
Interieurontwerp woonkeuken BEFORE AFTER - Hometolife3DInterieurontwerp met verlaagde woonkamer - Richmond Interiors - Room108 - Eleonora - Forme - Hometolife3D
< - >
Interieurontwerp met verlaagde woonkamer - Richmond Interiors - Room108 - Eleonora - Forme - Hometolife3D

Woning met sfeer door verlaagde woonkamer

Basisinfo

Ontwerp

Aantal ruimtes:

3,5

Ruimtes:

Verlaagde woonkamer, Keuken, Eetkamer, Entree

Focus:

Indeling, design en meubelplan

Meubels:

Forme, Room108, Eleonora, Richmond Interiors, Table Du Sud

Wandafwerking:

Arte Wallcovering

Plattegrond 2D

Interieurontwerp met verlaagde woonkamer - Richmond Interiors - Room108 - Eleonora - Forme - Hometolife3D

Plattegrond 3D

Interieurontwerp met verlaagde woonkamer - Richmond Interiors - Room108 - Eleonora - Forme - Hometolife3D

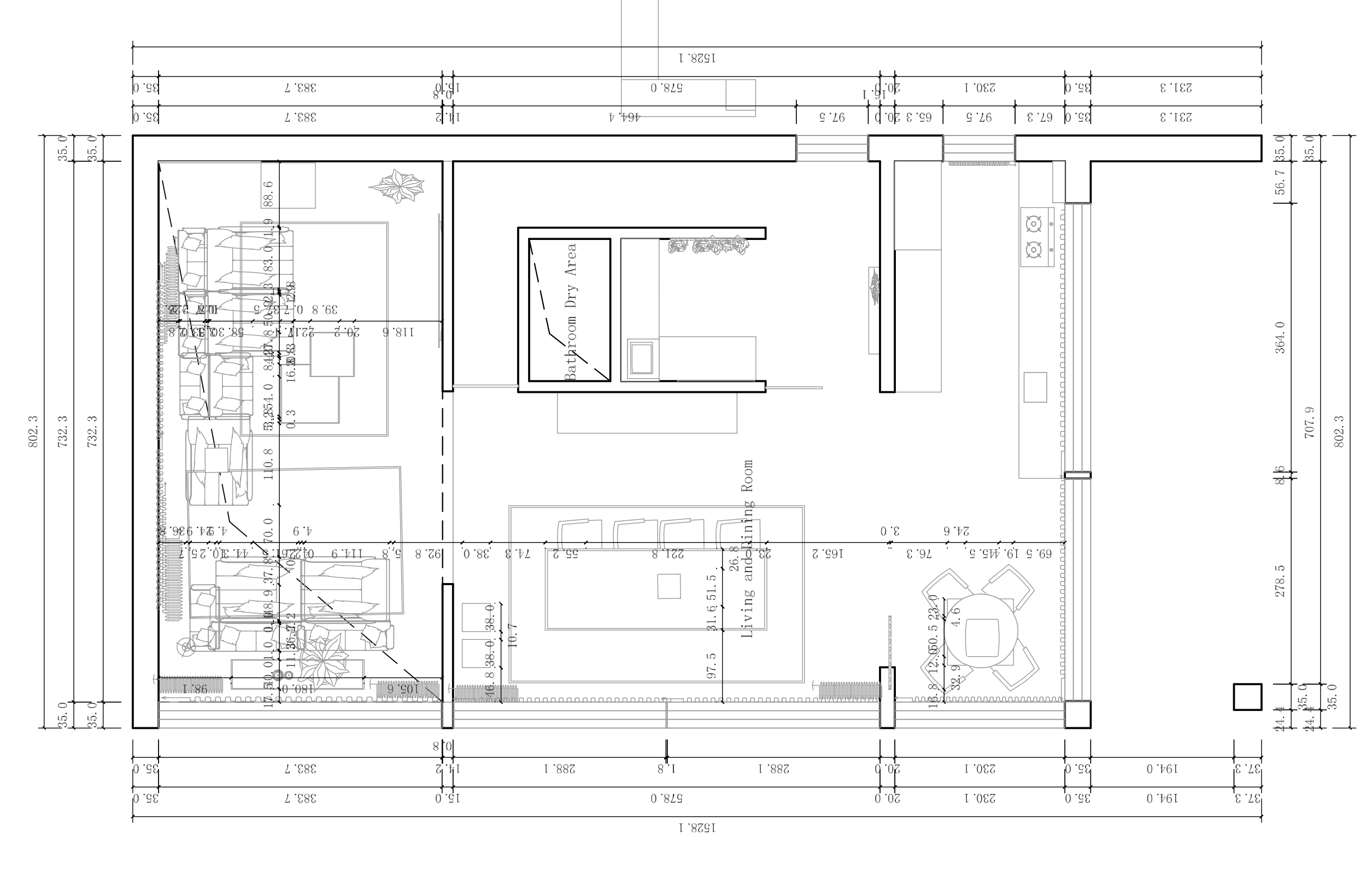
Technische Plattegrond

Shop the look

Shop de items uit het ontwerp

Sta in de ruimte

Sta in de ruimte met de levensechte interieur panorama

HAAL ALLES UIT JE INTERIEUR! ONTVANG EEN INTERIEURONTWERP INSPIRATIE IN LEVENSECHT 3D!

Bespaar jezelf een hoop tijd in de zoektocht naar het juiste interieur! Laat je verassen met een interieurontwerp inspriatie van Hometolife3D en ontvang een interieur ontwerp waarmee jezelf direkt aan de slag kunt!

Zie het verschil

De ruimte voor en na

Interieurontwerp woonkeuken BEFORE AFTER - Hometolife3DInterieurontwerp met verlaagde woonkamer - Richmond Interiors - Room108 - Eleonora - Forme - Hometolife3D
< - >
Interieurontwerp woonkeuken BEFORE AFTER - Hometolife3DInterieurontwerp met verlaagde woonkamer - Richmond Interiors - Room108 - Eleonora - Forme - Hometolife3D
< - >

Optimale ruimte beleving

Interieurvideo

LET OP! Het kan voorkomen dat afbeeldingen, afmetingen en kleuren, alsmede de namen binnen het ontwerp afwijken van de werkelijkheid. Alles wat op het scherm wordt waargenomen kan door vele factoren worden gewijzigd, waaronder de kalibratie, het omgevingslicht, de kijkhoek. De afgebeelde kleuren kunnen afwijken van de werkelijkheid, daarom wordt aangeraden om de producten aan de hand van stalen of een bezoek aan een van onze partner showrooms te beoordelen. Derhalve kunnen geen rechten ontleend worden aan de getoonde afbeeldingen met betrekking tot kleur. Lees meer binnen de disclaimer.

Top